Product Details
Overview
1.1 The three-phase AC 50Hz outdoor switchgear is suitable for 35kV power system used in urban networkand rural network for making and breaking load current, overcurrent and short-circuit current, and forother simmilar applications.
1.2 Standard
GB1984 "High-voltage alternating-current circuit-breakers"GB/T 11022 " Common specifcations for high-voltage switchgear and controlgear standard'DL/T402 "Technical conditions for ordering the high -y oltage AC circuit breaker"
Type Designation
Technical Parameters
Operating Conditions
4.1 Ambient air temperature: The maximum temperature is +$5°C, the minimum temperature is -40°C, andthe maximum daily temperature difference is 25K:4.2 Relative humidity: The daily m ean is not greater than 95%, and the monthly mean is not greater than
90%;
4.3 Altitude: <2,000 meters.
4.4 Wind speed: Not exceed 35m/s (equivalent to wind pressure 700 Pa)
4.5 Pollution degree: 3, 4;
4.6 lcing thickness: 10mm;
4.7 Seismic capacity: Horizontal acceleration: 0.3 g m/s, vertical acceleration: 0.2 g m/s;4.8 lnstalled in places where there are no fire, explosion, chemica, corrosion, and freauent severe yibrationFor any requirements out of the normal working conditions, please contact the manufacturer.
Structure And Working Principle
5.1 The overall structure is of the three-phase porcelain pillar type, and the product is primarily composed ofa three-phase porcelain pillar, a spring operating mechanism and drive system, conductive circuit, controlunit, and shell (common carton steel plastic-sprayed or stainless steel);
5.2 The vacuum interrupter is installed in a high-strength porcelain pillar, and high-strength insulationsilicone is filled between the interrupter and the porcelain pillar, providing high-voltage resistance, agingresistance, and excellent sealing capacity,
5.2 The reliable spring operating mechanism (manual or electric, with manual function available forelectric mode) is used, the energy-storing motor has small power with low opening and closing energyconsumption, and the operating mechanism is sealed in a box, there are temperature and humiditycontrollers and a heater with automatic switching function in the box to effectively prevent rust to theparts due to con densation, thus guaranteeing the reliability of the operations under the low temperatureand at high-altitude areas.
5.3 The porcelain pillar is made of high-strength porcelain (epoxy glass tube coated with silicone rubber),featuring with high and low temperature resistance, resistance to ultraviolet, and aging resistance,
5 .4 The intemal (extemal) two-phase or three-phase curent transformer (metering, measurement, andprotection) works with the surge controller to realize overcurrent protection and fault current quick-ofprotection, The intelligent controller can be provided as reouired by user to realize the automatic controlfunction.
5 .6 There are side-mounted, central, C'T internal or external modes according to the layout of operatingmechanism for selection by user.
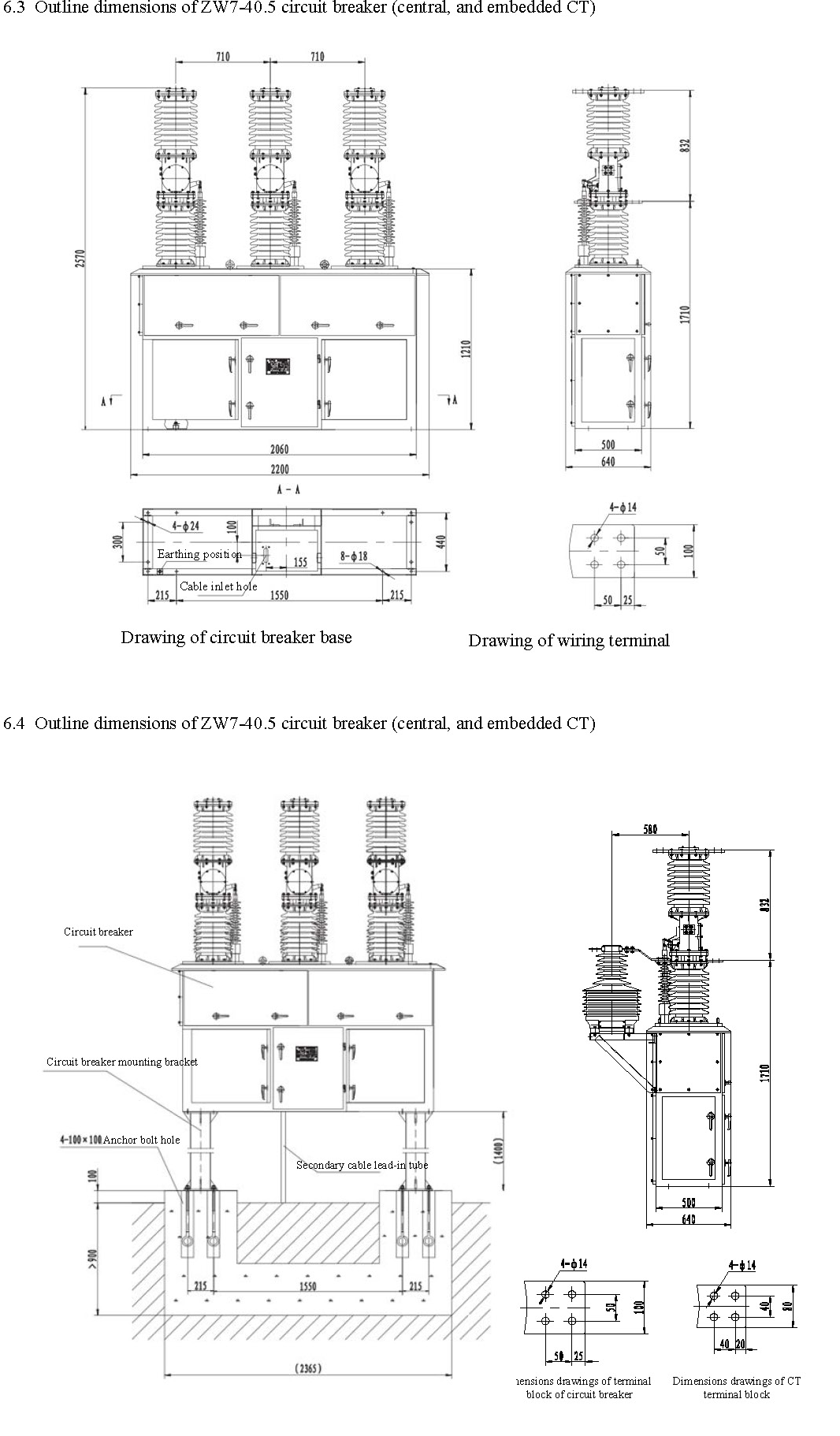
Outline and Installation Dimensions
Ordering Notice
7.1 Product model, name, spec. and qty.
7.2 Structure type (side-mount type or central type);7.3 Rated current, rated short circuit breaking current;7.4 Three-phase or two-phase current transform er and transforation ratio and accuracy,7.5 Current transformer configuration mode (built-in or external)7.6 Operating mechanism operating voltage,7.6 Names and quantity of accessories or spare parts7.7 For special requirements, please contact our company, and sign a technical agreement.
Online Inquiry
Or use the inquiry form below. Our sales staff will contact you within 24 hours. Thank you for your interest in our products!
